苏州甪直张浦锦溪CAD培训零基础轻松学好CAD苏州甪直张浦锦溪CAD培训零基础轻松学好CAD苏州甪直张浦锦溪CAD培训零基础轻松学好CAD苏州甪直张浦锦溪CAD培训零基础轻松学好CAD
新科教育培训学校是一家涵盖幼儿园,少儿才艺,中小学课程辅导以及成人培训等项目的综合性教育培训机构,总部位于苏州南环来自www.cnbianmin.com。新科教育自2005年成立以来,发展至今,旗下40多所分校全面覆盖苏州市区、高新区、园区、相城、吴江、吴中、上海、常熟、太仓、昆山、张家港、江阴、无锡、常州等地c n b i a n m i n c o m。
课程内容:
设置工作环境、相对直角坐标、相对极坐标、绘图工具、修改工具、标注工具、图层,图块,填充,多行文字,单行文字,机械图制图技巧,建筑图制图技巧c+n+b+i+a+n+m+i+n+c+o+m。
CAD施工图课程介绍 :
从CAD入门知识到高级设计技巧运用,最完整的CAD命令教学,结合工程图绘图实例,使学员迅速掌握CAD软件应用及操作技巧,通过具有代表性的工程案例的绘制,培养学员按照施工图制图规范,来绘制平面图、立面图、节点图、大样图等全套施工图中.国.便.民.网。
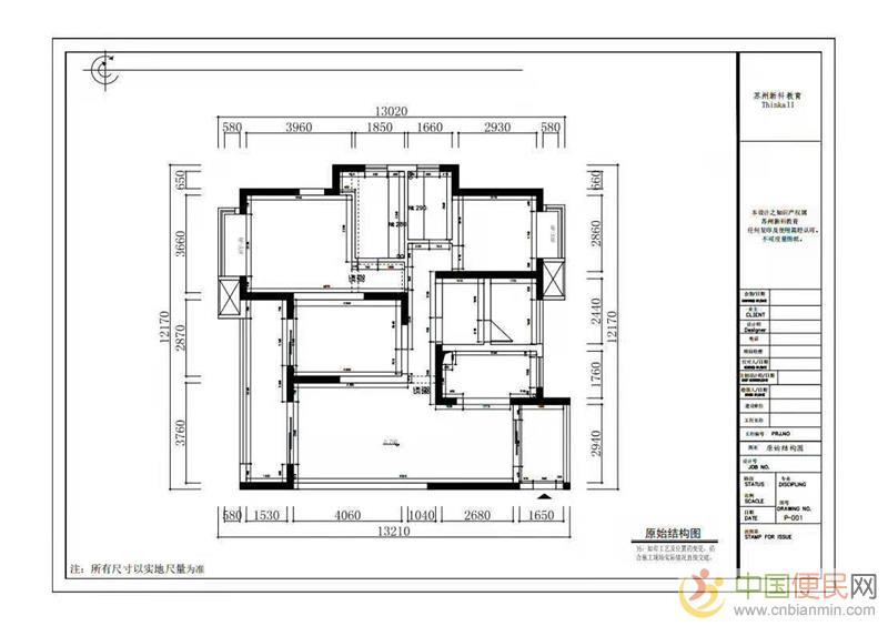
甪直CAD工程制图培训班 学习内容:
1、建筑结构图的绘制
2、平面图的绘制
3、天棚图的绘制
4、水电图的绘制
5、立面图的绘制
6、小户型方案设计与绘制
7、常见户型错层住宅设计与绘制
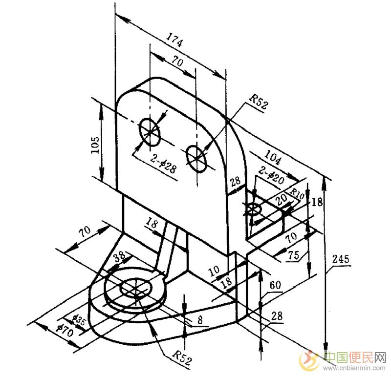
CAD机械制图 培训内容:
二维绘图与编辑命令;文本图表与尺寸标注;绘图工具;三维绘图相关命令;通用标准设计;轴套、联接件、盘盖类、齿轮类、箱体类零件设计;轴总成与齿轮泵总线设计;齿轮泵装配图设计等内容c~n~b~i~a~n~m~i~n~c~o~m。
课程安排如下:
1、机械制图的基础知识
2、机械常用零件绘制实战
3、机械零件设计方案的表达
4、机械零件图的绘制
5、绘制机械装配图
6、绘制机械等轴测图
7、机械图形输出
8、机械模型图设计
联系老师:石老师
在线 Q Q:278 325 6384
联系电话:199 6294 0597 微信:199 6294 0597
校区地址一:吴中区甪直镇万嘉生活广场4楼(新科教育)
附近站台:甪直镇政府,晓市路,甪直古镇,甫澄北路
公交路线:521路;521路支线;523路;527路;528路;563路;快线5号;52路
校区地址二:昆山市锦溪镇长寿东路710号(水榭蓝湾小区门口)
附近站台:农贸市场,蔚蓝半岛
公交路线:昆山293路,昆山294路,昆山391路,昆山296路
苏州甪直张浦锦溪CAD培训零基础轻松学好CAD苏州甪直张浦锦溪CAD培训零基础轻松学好CAD苏州甪直张浦锦溪CAD培训零基础轻松学好CAD苏州甪直张浦锦溪CAD培训零基础轻松学好CAD

153,5881,1527,QQ,1264,0099,63,蓝天环保回收硒鼓墨盒公司业务范围1、高价回收旧硒鼓、旧墨盒; 2、高价回收原装(新)硒鼓、墨盒; 3、高价回收原装过期、积压、库存新旧硒鼓,墨盒 ; 4、高价回收惠普等一切进口硒鼓的旧包装盒; 5、高价回收电脑、打印机等办公设备; 6、销售各种原装硒鼓、墨盒及办公用品

苏州唯冠环保工程有限公司专业管道疏通、清洗、化粪池清理抽粪。拥有高压清洗车、抽粪车等大型设备,专业承接高压水射流清洗管道、清理化粪池、抽粪、管道疏通、管道清洗、清理隔油池、管道清淤等业务。一、管道清洗

专业管道疏通清洗服务,24小时快速服务,厕所堵塞,厕所疏通、下水疏通、通厕所、下水管道疏通、马桶疏通、通下水道、疏通管道、高压清洗、抽粪及清理化粪池、管道安装,管道检测等。【公司介绍】管道疏通清洗服务

专业开孔钻孔,打孔,专业打孔、打孔、水钻打孔、室内打孔、墙体开门开洞、混凝土打孔、承重墙打孔,切割,绳锯,风炮,效率高服务好!

低价疏通、不通不收费、24小时疏通下水道、节假日不休!一、下水道疏通:机械疏通室内外各种大小下水管道,马桶,蹬坑,地漏,浴缸,菜池及各种疑难下水道等。1、疏通下水道:家庭、酒店、公司、学校等单位的下水

专业疏通各种疑难下水道、卫生间、地漏、浴缸、菜池、阴沟、马桶、蹲坑等。一、管道疏通备有大中高压清洗车--高压清洗各种上下水管道及各种疑难污水管道、市政管线、居民楼房所有分管、立管、主管管线。大小型机械

153,5881,1527,QQ,1264,0099,63 1,高价回收旧硒鼓墨盒; 2、高价回收新硒鼓墨盒; 3、高价回收原装过期、积压、库存新旧硒鼓,墨盒 ; 4、高价回收惠普等一切进口硒鼓的旧包装盒; 5、高价回收电脑、打印机等办公设备; 6、销售各种原装硒鼓、墨盒及办公用品; 7、硒鼓加粉、墨盒加墨;

空调打孔、天台热水器打孔、天台 浴霸打孔、天台 吸油烟机打孔、天台 排风扇打孔、天台 燃气管道打孔、天台 上下水打孔、天台 地漏打孔、天台 马桶打孔、天台各种规格)天台公司工程打孔 公司专业钻孔,公司钻钢筋混凝土孔,公司钻混凝土大孔、深孔,钻孔切割拆除,公司桥梁钻孔工程,公司公路路面钻孔工程,公司楼板楼面钻孔,

苏州专业打孔开洞,切墙拆除,大小工程打孔,地坪切割钻孔1.混泥土承重墙新开门洞、开窗、空调、油烟机、热水器等各种型号的预留钻孔、及通风管道开洞、消防管道钻孔、线槽开孔、墙面拆除、楼板拆除、加固钻孔;1cm-25cm 可直接钻孔、及各种规格大小的过墙孔工程。 2.路面打孔 ,公路,铁路,道桥,桥梁,打通风孔,下水孔,各种管线孔,路面开线槽

130,6380,8527 微信同号 高价回收旧硒鼓、旧墨盒; 2、高价回收原装(新)硒鼓、墨盒; 3、高价回收原装过期硒鼓 过期墨盒 4、高价回收惠普佳能完好旧包装 和二维码。销售国产通用硒鼓 质量保证包退包换。公司承诺: 同等的价格比服务,同等的服务比价格! 诚信 诚意 诚心高价回收。 欢迎来电、免费上门取货

苏州地区专业上门打孔服务,多年经验,全城低价,欢迎来电详询。一、家庭打孔 :空调打孔 热水器打孔 浴霸打孔 吸油烟机打孔 排风扇打孔燃气管道打孔 玻璃打孔 上下水打孔 地漏钻孔 马桶钻孔 暖气打孔 水管打孔 窜线过墙孔 烟筒钻孔等各种规格 直径为1cm-25cm的孔可直接钻孔,但根据需要也可连排式钻孔!

苏州孔切割10年,靠口碑做活,保质保量,大活小活,经验丰富!包括混凝土墙切割,水钻切割开门、开窗等等、我们可以钻您需要的各种孔!空调的,水电的,油烟机等等....我们有专业的队伍,工程量大可以聚齐,工作量小可以分散!价格公道 !欢迎来电洽淡!

专业从事管道疏通、下水道疏通、化粪池清理,外墙清洗、地板清洗等服务综合性家政公司,公司具有多年丰富的疏通经验,愿为您提供满意周到的家政服务。30分钟内上门,专业人员、专业设备、专业品质让您省心、省事、

苏州唯冠管道疏通公司就近排工30分钟左右到,24小时上门服务。10多年经验,工具齐全,专业疏通下水道,不通不收费。童叟无欺,诚信经营,欢迎新老客户长期合作。一、管道疏通1、市政管道:备有大型机械,疏通

138,1268,7851,QQ,1264,0099,63,高价回收原装系列各种硒鼓墨盒,库房积压硒鼓墨盒回收,电脑显示器回收,打印机回收 原装墨盒回收,原装硒鼓回收,回收新旧墨盒,回收新旧硒鼓,销售各种墨盒硒鼓,各种硒鼓墨盒回收,长期回收,谢谢您把我公司的回收信息提供给您的朋友,为我公司提供信息有,随叫随到一个电话我们会第一时间赶到,价格来电详谈,期待和您长期合作,上门回收,期待您的来电

153,5881,1527,QQ,1264,0099,63 1,高价回收旧硒鼓墨盒; 2、高价回收新硒鼓墨盒; 3、高价回收原装过期、积压、库存新旧硒鼓,墨盒 ; 4、高价回收惠普等一切进口硒鼓的旧包装盒; 5、高价回收电脑、打印机等办公设备; 6、销售各种原装硒鼓、墨盒及办公用品; 8、回收新硒鼓

153,5881,1527,QQ,1264,0099,63 1, 高价回收旧硒鼓、旧墨盒; 2、高价回收原装(新)硒鼓、墨盒; 3、高价回收原装过期硒鼓 过期墨盒 4、高价回收惠普佳能完好旧包装 和二维码。 5 销售国产通用硒鼓 质量保证包退包换。 江苏全市各地区硒鼓墨盒回收,高价回收。 欢迎来电、免费上门取货。

138,1268,7851,QQ,`1612,5148,41高价回收惠普佳能各种型号硒鼓包装以及墨盒包装2、高价回收旧硒鼓、旧墨盒3、高价回收原装(新)硒鼓、墨盒4、销售各种原装硒鼓、墨盒及办公用品高价回收电脑、打印机等办公设备服务方式:上门回收硒鼓墨盒,现金支付,苏州地区提供上门服务,周边城市量大也可上门收货。

苏州唯冠管道清洗服务有限公司专业疏通家庭、单位、公司的各种下水道、马桶、地漏、蹲坑、化粪池、菜池、小便池等。承接各种大饭店、宾馆、学校、写字楼、办公楼、商场、工厂、机关单位等管道疏通清淤服务。我们承诺

苏州唯冠环保工程有限公司是一家专业从事下水道疏通、管道疏通、抽污水、清理於泥、抽粪、高压清洗管道、高压清洗车疏通各种大小排污管道、环卫车清理化粪池服务公司。多年来长期与、物业、酒店、学校、单位、小区、

苏州solidworks培训,solidworks钣金培训,SW非标机械自动化培训,SW钣金拆图展开培训 课程介绍: 第一部分 Solidworks基础知识 (1)Solidworks安装方法、界面介...
景观设计专业能够掌握城市景观设计的理论和技能,具有环境景观设计和设计表达能力,并能开展城市景观设计、风景区设计、景观工程管理等应用型专业人才。景观设计专业可以从事与风景园林规划、建筑规划设计、房地产开...
学习安排 一、CAD机械制图 三维建模,拉伸,灯光设置、材质表现、三维零件输出平面视图;能够掌握绘制三维机械零件的方法及输出平面视图的技巧 二、UG造型实战 能熟练应用UG设计曲面,并能绘制曲线,添加...
课程安排如下: 1、介绍学习AUTOCAD的方法,AUTOCAD的使用界面,AUTOCAD画图基本知识,以及机械制图基本知识。 2、学习AUTOCAD的各种画图辅助手段包括:坐标系的使用,捕捉、极轴追...
课程安排如下: 1、介绍学习AUTOCAD的方法,AUTOCAD的使用界面,AUTOCAD画图基本知识,以及机械制图基本知识。 2、学习AUTOCAD的各种画图辅助手段包括:坐标系的使用,捕捉、极轴追...
本机构室内设计培训内容: 一、手绘技法:手绘效果图、手绘建筑施工图、手绘强化综合课。 二、电脑效果图:CAD初级、3DSMAX效果图、VRAY高级渲染、CAD平面制图、PHOTOSHOP后期处理。 三...
培训内容: 1、创意美术:美术素描设计、美术色彩设计、手绘图标、设计构成、人体结构、光影透视、阶段考核。 2、二维软件基础:Photoshop,c4d美工。 3、角色设计:数字绘画风格讲解(欧美写实风...
【学校介绍】 硕帆教育,隶属于苏州依金教育科技有限公司的旗下成人教育品牌,是一家专业从事线下+线上技能考试助学服务的教育培训单位。2016年启航,历经风雨数载,积累了丰富的行业经营和管理经验,自始至终...
平面设计适合职业 网站美工人员、设计助理、平面设计师、资深设计师、建筑设计师、美术指导、设计总监等。 工作内容:平面设计主要包括美术排版、平面广告、海报、灯箱等的设计制作。 就业趋向:报纸、杂志、出版...
针对广告公司和专业设计公司的需求,培养具备综合素质和技能的平面设计师,使学员掌握平面设计不同职位需求的专业设计技能,并具备独立完成各种设计项目的能力。学员毕业后可以从事广告公司、企划公司、图文设计公司...